匠心 服務 創新 品質

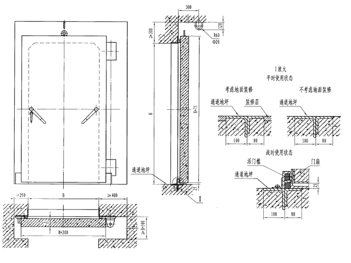
此類門的特點是平時不設門檻,地面平整,便于人員或車輛通行:戰時快速設置門檻,以滿足防護、密閉要求。

| 型號 | 門孔寬B | 門孔高H | 門扇厚δ |
|---|---|---|---|
| HHFM0820(6) | 800 | 2000 | 120 |
| HHFM0920(6) | 900 | 2000 | 120 |
| HHFM1020(6) | 1000 | 2000 | 120 |
| HHFM1220(6) | 1200 | 2000 | 126 |
| HHFM1320(6) | 1300 | 2000 | 140 |
| HHFM1520(6) | 1500 | 2000 | 140 |
| HHFM2020(6) | 2000 | 2000 | 180 |
| HHFM2020(6) | 2000 | 2400 | 180 |
| HHFM0820(5) | 800 | 2000 | 126 |
| HHFM0920(5) | 900 | 2000 | 126 |
| HHFM1020(5) | 1000 | 2000 | 126 |
| HHFM1220(5) | 1200 | 2000 | 126 |
| HHFM1320(5) | 1300 | 2000 | 140 |
| HHFM1520(5) | 1500 | 2000 | 160 |
| HHFM2020(5) | 2000 | 2000 | 200 |