匠心 服務 創新 品質

電控防護密閉門的防電磁脈沖能力為III級。改類電控門輕變靈活,為一機兩用電控門,即開關門與開關鎖共用一個動力裝置,具有就地控制、遠程控制及智能控制(門禁系統)三種控制方式,并可根據工程需要加裝安全監控和電磁鎖裝置。有下列要求之一時,宜采用手動、電動兩用的防護設備:
(1)安裝位置處于手動操作不便的場所;
(2)有自動控制、遠程控制或智能控制要求;
(3)有啟動時間要求。

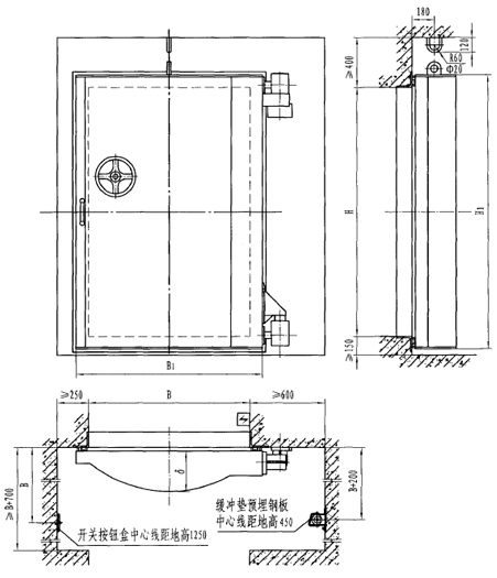
| 型號 | 門孔寬B | 門孔高H | 門扇厚δ | B1 | H1 | 啟閉時間(s) |
|---|---|---|---|---|---|---|
| DFM2010(5) | 1000 | 2000 | 309 | 1200 | 2200 | ≤15 |
| DFM1320(5) | 1300 | 2000 | 323 | 1500 | 2200 | ≤15 |
| DFM1520(5) | 1500 | 2000 | 365 | 1700 | 2200 | ≤15 |